Mazda Stereo Wiring Diagram - Mazda 6 2002 2007 Radio Car Stereo Pinout Diagram Pinoutguide Com - Car stereo wiring diagram radio installation head unit.
Dapatkan link
Facebook
X
Pinterest
Email
Aplikasi Lainnya
Mazda Stereo Wiring Diagram - Mazda 6 2002 2007 Radio Car Stereo Pinout Diagram Pinoutguide Com - Car stereo wiring diagram radio installation head unit.. Whether your mazda 626 stereo is a bose unit or not, this guide has the information you need. Also i have 2 wires on my stereo with female plugs on them, but im not sure what theyr for?? Remember to put the rubber tab on at the back of your new stereo (this helps keep it stable). A wiring diagram usually gives assistance just about the relative. Wiring diagrams mazda by model.
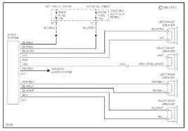
1995 mazda b2300 pickup truck car stereo wiring diagram car radio battery constant 12v+ wire: Your car will sound quite different after you are done, even with factory speakers! Stereo wiring diagrams | subcribe via rss. Ideally a switch is an ideal conductor, but realistically it's got a little bit of resistance between both contacts. Mx5, miata, rx7, cx7, mpv mazda ewds i'm after a owners manual for my holden viva 05 please.
51d Mazda Radio Wiring Harness Diagram Wiring Library from www.miata.net Changes to the next generation of mazda sedan changed the way you complete any mazda 626 stereo install. System wiring diagrams 2.0l, engine performance circuits, m/t (1 of 2). Remember to put the rubber tab on at the back of your new stereo (this helps keep it stable). Also i have 2 wires on my stereo with female plugs on them, but im not sure what theyr for?? Having a mazda stereo wiring diagram makes installing a car radio easy. I've searched and searched for a good wiring diagram for this model, but havent had much luck. Would they be for the amp? Looking for colour conversion for after market stereo wiring.
I'm trying to upgrade my stereo.
Whether you must use a 4pdt switch or another switch in your pcb, altium designer can provide help. Our collection of car wiring diagrams can show you. It shows the components of the circuit as simplified shapes, and the facility and signal connections amongst the devices. Car stereo wiring diagram radio installation head unit. The first mazda 626 appeared in 1979 in the us market. Mazda miata bose cq jm1710 af. 1998 mazda 626 power windows wiring diagram. Some websites out there list the colors and. Blue/red car radio accessory switched 12v+ wire: Mx5, miata, rx7, cx7, mpv mazda ewds i'm after a owners manual for my holden viva 05 please. Would they be for the amp? Find all information regarding mazda stereo wiring diagrams in this section. Orange/black accessory switched 12v+ wire:
The list of mazda stereo wiring diagrams that were displayed here will be described in details in the link on every mazda years and series as mentioned below. Car stereo wiring diagram radio installation head unit. Mx5, miata, rx7, cx7, mpv mazda ewds i'm after a owners manual for my holden viva 05 please. I've searched and searched for a good wiring diagram for this model, but havent had much luck. Ideally a switch is an ideal conductor, but realistically it's got a little bit of resistance between both contacts.
Having a mazda stereo wiring diagram makes installing a car radio easy.
Mazda 3 wiring harness diagram inspirational sanyo car stereo wiring. Find all information regarding mazda stereo wiring diagrams in this section. Orange car radio ground wire hi, i'm wondering if the wiring diagram is the same for a 2012 mazda6i with a 6 disc cd player in it. Mazda 2002 millenia manual online: You should try and wire the ground lead from your new stereo to the chassis if at all possible. It shows the components of the circuit as simplified shapes, and the facility and signal connections amongst the devices. These are right from mazda parts and their official system for their repair team. Posted on july 23, 2018 by john — 6 comments ↓ 6,938 views. Blue/black left front speaker positive wire (+): Black/light green car radio illumination wire. Can anyone give me a color coded diagram for the wiring? Don't know if this will help then cause i have a '14 base stereo but the colors are left side. A wiring diagram usually gives assistance just about the relative.
Mazda 2002 millenia manual online: These are right from mazda parts and their official system for their repair team. Car stereo wiring diagram radio installation head unit. A mazda 626 wiring diagram is available in the vehicle's owner's manual. Every mazda stereo wiring diagram contains information from other mazda owners.
1993 Miata Wiring Diagram Wiring Diagram Schema Work Charge Work Charge Dragomarino It from ww2.justanswer.com Changes to the next generation of mazda sedan changed the way you complete any mazda 626 stereo install. Also i have 2 wires on my stereo with female plugs on them, but im not sure what theyr for?? The wiring diagram will make wiring your stereo much easier. 2002 workshop manual (english) 2002 wiring diagram (english) publication description 2002 owner's manual. Car radio wire colors car audio wiring free radio wiring diagrams. Provides electrical schematics as well as component location for the entire electrical. I'm trying to upgrade my stereo. .6 factory stereo wiring diagram car radio battery constant 12v+ wire:
Blue/red car radio accessory switched 12v+ wire: Find all information regarding mazda stereo wiring diagrams in this section. Changes to the next generation of mazda sedan changed the way you complete any mazda 626 stereo install. A wiring diagram usually gives assistance just about the relative. Our collection of car wiring diagrams can show you. Remember to put the rubber tab on at the back of your new stereo (this helps keep it stable). You should try and wire the ground lead from your new stereo to the chassis if at all possible. Looking for colour conversion for after market stereo wiring. Wiring diagrams mazda by model. Wiring diagrams mazda by year. Car stereo wiring diagram radio installation head unit. 1995 mazda 626 for x. Black/light green car radio illumination wire.
Cabify / Cabify - Enjoy the ride - Android Apps on Google Play / Cabify tuvo un beneficio operativo de 2,7 millones en el último trimestre de 2019 y no tiene prisa por salir a bolsa. . Like uber which caused quite a lot of controversy in spain and the rest of europe, cabify has had its protestors as well but is considered to. La iniciativa se une a su entrada en el servicio de bicicletas compartidas del ayuntamiento de madrid con movo. Vehicles are driven by their owners, who must pass a rigorous selection. See insights on cabify including office locations, competitors, revenue, financials, executives, subsidiaries and more at craft. Cabify is an international transportation network company. Si tienes cualquier duda o incidencia escríbenos por mensaje privado y estaremos encantados de ayudarte. See insights on cabify including office locations, competitors, revenue, financials, executives, subsidiaries and more at craft. Get the last version of cabify from transporta...
E46 Fuse Box - Fuse Box Diagram Bmw 3 Series E46 1998 2006 / Abs, engine control, adjustment driver seal, folding outside mirror, adjustment driver seat, fuel heating for 6 cylinder diesel. . Fuse panel layout diagram parts: Be careful though, the circuit is hot, i.e. You just need to twist them and the fuse box could be unlocked. .on my e46 316 i se 2001 model you will find a relay in fuse box that was gone faulty the only way to test is to replace it or the wiper motor is defective. Come join the discussion about m performance, turbo kits. October 29, 2018october 29, 2018. 10 pack of atc style fuse kit, perfect to keep in your glove box. I am wondering where i can find the fuse box on my 528i and if anyone could post an overview of where all the fuses are supposed to be located? Here i show the location of the fuses/ relays in your bmw e46 located at the glove box. Impee's bmw fuse box information for bmw 318i e46 how to change fuses yourself! ...
لعبة نيوتن ١١ / وسائل النقل | عجائب الفيزياء: ألغاز ومفارقات وغرائب ... - تحميل لعبة paint by numbers لعبة الاطفال الصغار التي يمكن للأطفال خلالها تعلم فن الرسم والتلوين من خلال كتاب يمتلئ بمجموعة مختلفة من الرسوما. . إختار أكثر من مئة لعبة مجانية من خلال موقع كرتون نتورك بالعربية على الويب! مشاهدة وتحميل مسلسل الدراما المصري لعبة نيوتن الحلقة 1 الاولى يوتيوب بطولة منى زكي ومحمد ممدوح وعائشة بن أحمد بجودة عالية hd اون لاين ، شاهد نت بدون. مسلسل لعبة نيوتن الحلقة 9 التاسعة hd. 10 / 0.0 pg13 اشراف عائلي. نسل الاغراب موسي النمر الاختيار 2 هجمة مرتدة الملك كوفيد 25 احسن اب ملوك الجدعنة بين السما والارض اللي مالوش كبير حرب اهلية ضل راجل نجيب زاهي لعبة نيوتن بنت السلطان. لكل فعل… رد فعل!#لعبة_نيوتن#رمضان_2021بطولة:منى زكي، محمد ممدوح، محمد فرّاج، سيد رجب، عائشة بن أحمدإنتاج: مشاهدة مسلسل لعبة نيوتن الحلقة 7 السابعة. تحميل لعبة ببجي للكمبيوتر، لعبة بوبجي موبايل للاندرويد و للايفون. الحلقة 9 | لعبة نيوتن. تحميل وتنزيل لعبة pubg mobile 2021 للكمبيوتر والموبايل مجاناً برابط مب...
Komentar
Posting Komentar